Villa Brottsta | Eskilstuna, Sweden
Optimizing a 70’s residence in Södermanland.
-
Reconfiguration and Optimization.
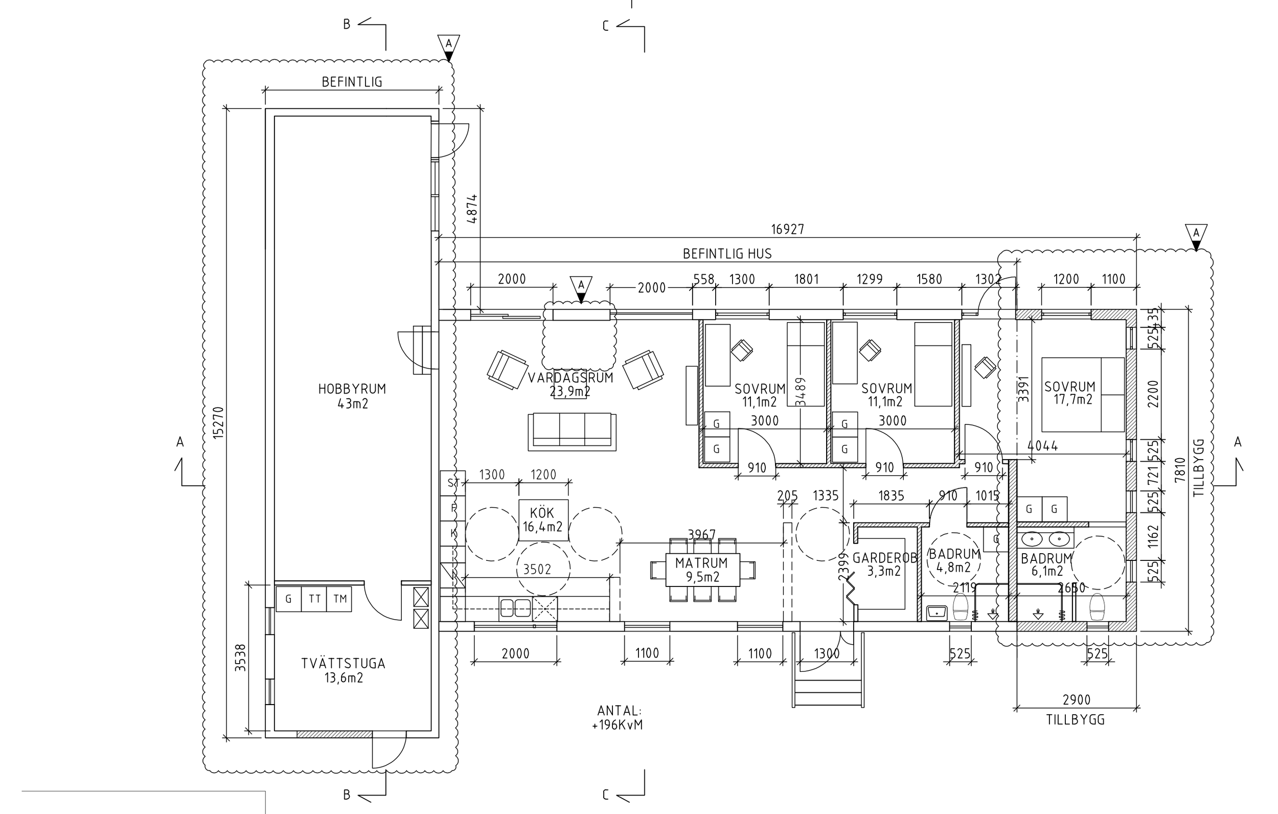
HTDSTUDIO has been given the task of reconfiguring and optimizing a private home originally built in 1969. We added living space as well as augmented the facade and overall envelope as well as bringing the house up to current standards.
-
Client: Withheld | Location: Eskilstuna, Sweden | Total Size: 2906ft2/270m2 | Budget: Withheld | Status: Built, Winter 2022
-
Design Lead: HTDSTUDIO Arkitekter AB
-
Site Plan
©HTDSTUDIO - Interior - Scheme ‘D-2’
©HTDSTUDIO - Interior - Scheme ‘D-2’
©HTDSTUDIO - Interior - Scheme ‘D-2’
Axonometric, earlier scheme
Alternate design (Created with MidJourney)
